26 Greenway Crescent, Richmond

Positioned on a corner section in the established Patons Rise, this brand-new home has been designed with family living in mind.

Asking Price: $1,050,000

Bedrooms: 3

Bathrooms: 2

Living Spaces: 2

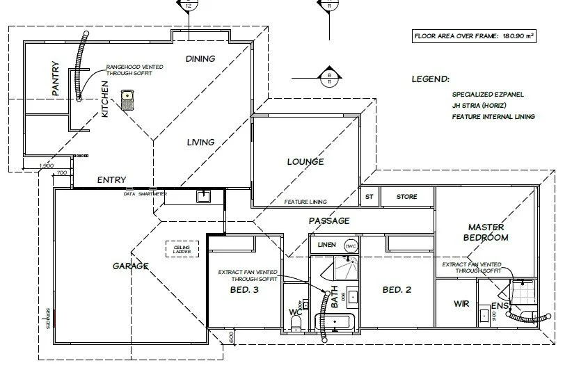
Square Metres: 181

Garage: 2

Ensuite

Study

 
 

More about this home

The open plan living kitchen and dining are a great space for the family whether relaxing or entertaining guests. A separate lounge can be closed off for those more restful moments. Both areas open out to a covered alfresco area. The garden and outdoor area benefits from a Northern aspect to enjoy the best of the Tasman sunshine.

With three double bedrooms plus an office, there’s flexibility to work from home or use as a teenager's study space. The master bedroom soaks up the sun and includes a walkthrough wardrobe and ensuite with tiled floor and shower.

The double garaging includes the laundry area and there is additional off-street parking.

Other highlights/inclusions:

-Bespoke kitchen and laundry design

-Fisher & Paykel kitchen appliances - cooktop, oven, dishwasher & extractor

-All floor coverings – vinyl planks, tiles and carpets by Hubbers Flooring

-Fujitsu Hi Wall heat pump

-Elementi “Uno” tapware throughout

-Concrete driveway and patio included and landscaping

-Section size is approx. 615m2 and floor plan is 181.75m2

Next
Next

38 Hallmark Drive, Richmond